18611994378  崔经理

新闻动态

新闻动态

华为TP48200E-H12S1室外高频开关电源柜部件介绍,华为通信电源,华为电源柜

华为TP48200E-H12S1室外高频开关电源柜部件介绍,华为通信电源,华为电源柜

一丶温控单元4

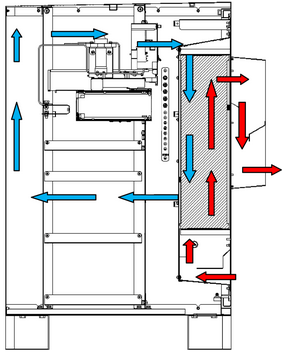
①直通风

TP48200E采用直通风方式,直通风单元加速内外空气热循环,有效降低机柜的工作温度。

风向图

图片.png

温控参数系统特性列表

特性

描述

温控系统类型

直通风

换热效率

140W/K

②热交换

温控单元图

图片.png

温控参数系统特性列表

特性

描述

温控系统类型

热交换

换热效率

85W/K

二丶配电单元

TP48200E配电单元实现电源系统的交流、直流配电功能。

配电单元外观图

图片.png

维护插座

图片.png

配电指示表

参数

指标

交流配电

交流总输入

63A /3P MCB×1 路, C级防雷

交流输出

16A MCB×1 路, 16A MCB×1路维护插座

直流配电

负载下电支路

主要负载支路(BLVD):16A MCB×2 路;10A MCB×1 路

次要负载支路(LLVD): 63A MCB×2 路;32A MCB×2 路

电池接入

125 A/1P MCB×2路

三丶R4850整流模块介绍

R4850G1/R4850N1整流模块面板示意图

图片.png

 R4850G1/R4850N1整流模块指示灯说明

指示灯

颜色

状态

状态说明

处理建议

运行指示灯

绿色

常亮

整流模块输出正常

正常状态,无需处理

常灭

整流模块无输出

检查交流输入是否正常;如交流输入正常,更换整流模块

告警指示灯

黄色

常灭

整流模块无保护告警

正常状态,无需处理

常亮

环境温度过高引发的整流模块限功率预告警;

环境温度过高或过低保护关机告警

检查整流模块通风口有无堵塞和环境温度是否正常

交流输入过欠压保护

检查电网电压

整流模块休眠关机

正常状态,无需处理

故障指示灯

红色

常灭

整流模块无故障

正常状态,无需处理

常亮

输出过压锁死

拔出整流模块,等待1分钟以上再插入

整流模块内部故障引起的无输出

更换整流模块

4Hz闪烁

整流模块处于应用程序加载状态

加载完毕自动恢复,无需处理

四丶监控单元

图片.png

手动电池开关

  • 当系统正常工作时,手动电池开关应置于Normal位置。

  • 当需要将电池强制接通时,手动电池开关应置于BAT On位置,操作完成后重新置于Normal位置。


电话直呼
在线客服
发送邮件
联系我们:
18611994378
18611994378
18611994377
18611994378
还可输入字符250(限制字符250)
技术支持: 建站ABC | 管理登录
seo seo