|
|
华为MTS9510A-HX2001室外一体化电源柜参数,华为通信电源,华为室外柜 机柜说明
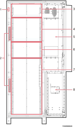
l 3U 电源插框或设备安装空间内,建议安装温度规格 68℃以上的设备。 l 9U 设备安装空间内,建议安装温度规格 62℃以上的设备。 l 6U 设备安装空间内,建议安装温度规格 60℃以上的设备。 l 20U 设备安装空间内,建议安装低功耗且温度规格 60℃以上的设备。 内部结构
产品参数 多功能通信系统 MTS(multiple telecommunication system)为无线通信站点提供户外物理工作环境、安全系统和监控组网的整体解决方案,集成了户外机柜、温控设备、通信电源、监控、网管系统、交直流配电、防雷等功能,并为用户预留足够的安装空 间。配合华为锂电 2.0 产品支持 57V 恒压输出,支持温控扩容,支持叠加 5G 室内刀片。MTS 是一系列高效、智能、一体化站点、5G 拉远供电解决方案。 产品特点如下: l 高效站点 − 电池休眠 − 温控节能 − 高密度热交换 − 高效整流模块 l 智能化站点 − IP、GPRS、带内组网 − 智能温控管理 l 一体化站点 − 配电模块化配置
|





