18611994378  崔经理

新闻动态

新闻动态

华为MTS9606B-L20B1 室内通信电源柜 高频电源机柜 开关电源柜 48V通信电源柜


                                               华为MTS9606B-L20B1 室内通信电源柜 高频电源机柜  开关电源柜 48V通信电源柜

华为MTS9606B-L20B1 是室内通信电源系统,将交流电转换为稳定的直流电,主要为–48V系列的通信设备进行供电。 MTS9606B-L20B1 最大输出电流是600A。
 MTS9606B-L20B1 的机柜外观


1596871282454233.jpg
系统特点
电压范围宽至85V AC~300V AC

完善的电池管理功能

完善的交、直流防雷设计

支持华为网管协议和电总协议,可与华为NetEco网管、M2000网管或第三方网管通信,组网灵活,可实现远程管理,无人值守

支持LCD界面中英文显示、按键操作

支持整流模块热插拔和高效、标效整流模块混插

整流模块功率因数值达0.99

高效整流模块效率最高达到96%,标效整流模块效率最高达到93%

 

工作原理

1596871329498445.jpg
交流电通过交流配电单元进入整流模块,整流模块将交流电转成–48V直流电,由直流配电单元给多路负载供电。交流电供应正常的情况下,整流模块除了给直流负载供电外,还为电池提供充电电流。当交流电断电时,整流模块停止工作,由电池给直流负载供电。交流电恢复后,整流模块重新给直流负载供电,并对电池进行充电,补充消耗的电量。监控单元实时监控电源系统各部件的运行状态,并进行相应的智能控制,如有异常,及时上报告警信号。
电源系统工作原理示意图
imgDownload.png设备配置
系统配置



项目

华为MTS9606B-L20B1 

华为MTS9606B-L20B1 

整流模块

最大可支持12个R4850G6或R4850N6或R4850S1

最大可支持12个R4850G6或R4850N6或R4850S1

最大输出电流

600A(最大负载电流400A)

600A(最大负载电流400A)

配电单元

交流配电:交流输入空开,整流模块空开和交流输出空开

直流配电:重要负载下电支路(BLVD),次要负载下电支路(LLVD)和电池支路

交流配电:交流输入空开,整流模块空开和交流输出空开

直流配电:重要负载下电支路(BLVD)和电池支路

监控单元

SMU06T

SMU06T

交流输入制式

220/380V AC三相四线

220/380V AC三相四线

交流防雷

标称雷击放电电流20kA,最大雷击放电电流40kA,8/20us

标称雷击放电电流20kA,最大雷击放电电流40kA,8/20us

直流防雷

差摸10kA,共模20kA,8/20us

差摸10kA,共模20kA,8/20us

 
产品特点
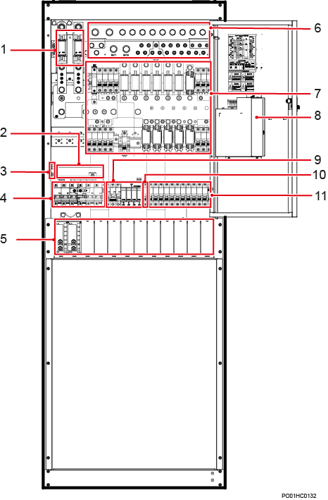
imgDownload-1.png内部结构(01072531-045)
(1)电池熔丝

(2)重要负载下电支路空开

(3)N接线排

(4)机柜接地排

(5)交流输入空开

(6)整流模块安装空间

(7)RTN+母排

(8)次要负载下电支路空开和熔丝

(9)监控单元SMU06T

(10)防雷器空开和防雷器

(11)交流输出空开

(12)整流模块空开

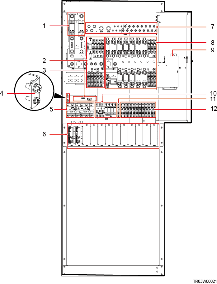
 内部结构(01072531-048)
imgDownload-2.png(1)电池熔丝

(2)N接线排

(3)机柜接地排

(4)交流输入空开

(5)整流模块安装空间

(6)RTN+母排

(7)重要负载下电支路空开和熔丝

(8)监控单元SMU06T

(9)防雷器空开和防雷器

(10)交流输出空开

(11)整流模块空开



配电单元
TP48600B-N16C1的配电单元分为交流配电单元和直流配电单元。

表3-1 MTS9606B-L20B1配电单元规格
项目

 MTS9606B-L20B1

 MTS9606B-L20B1

交流配电

交流输入空开

100A/3P×2路

100A/3P×2路

整流模块输入空开

32A/1P×12路

32A/1P×12路

防雷器空开

32A/3P×1路

32A/3P×1路

交流输出空开

说明:
单相输出电流小于16A。

16A/1P×1路

16A/1P×1路

直流配电

BLVD支路

空开:10A/1P×4路,16A/1P×4路,32A/1P×1路

熔丝NT00:250A×6路,63A×6路

空开:32A/1P×8路,16A/1P×4路,10A/1P×4路

LLVD支路

熔丝NT00:100A×6路,63A×6路

空开:32A/1P×7路

/

电池支路

熔丝:500A×2路

熔丝:500A×2路

 
整流模块
整流模块将输入的交流电转换成稳定的直流电。

图3-3 整流模块外观
imgDownload-3.png(1)运行指示灯

(2)告警指示灯

(3)故障指示灯

(4)拨销

(5)把手


表3-2 整流模块指示灯说明
指示灯

颜色

状态

说明

运行指示灯

绿色

常亮

整流模块有交流输入。

常灭

无交流输入。

整流模块内部损坏。

0.5Hz闪烁

人工查询状态。

4Hz闪烁

整流模块处于应用程序加载状态。

告警指示灯

黄色

常灭

整流模块无保护告警。

常亮

环境温度过高预告警。

环境温度过高或过低保护关机告警。

交流输入过欠压保护。

整流模块休眠关机。

0.5Hz闪烁

整流模块与外部通讯中断。

故障指示灯

红色

常灭

整流模块无故障。

常亮

输出过压锁死。

整流模块内部故障引起的无输出。

监控单元SMU06T
面板
图3-4 SMU06T面板
imgDownload-4.png(1)告警指示灯

(2)运行指示灯

(3)液晶显示屏

(4)按键“返回”

(5)按键“下”

(6)按键“确认”

(7)按键“上”



表3-3 按键说明
按键标识

按键名称

说明



“上”

按“”可以向上翻阅菜单或调整参数的选择值。

调整参数时,长按“”可以快速调整参数值。

“”

“下”

按“”可以向下翻阅菜单或调整参数的选择值。

调整参数时,长按“”可以快速调整参数值。

“”

“返回”

按“”可退回上一级菜单并且不保存所设置菜单值。

“”

“确认”

在待机屏时,按“”可进入主菜单。

在主菜单中按“”可进入下一级子菜单。

在子菜单设置时按“”可以保存菜单选项值。

说明:
30秒无按键操作LCD背光灯关闭。

1分钟内无按键操作需重新登录,预设密码为000001。

设置参数时长按“”或“”,参数值将快速增加或减小。

同时按住“”和“”或“”超过2秒,可以增强或降低LCD的亮度。

同时按住“”和“”超过10秒,可以复位监控。

表3-4 面板指示灯说明
名称

颜色

状态

说明

运行指示灯

绿色

常灭

监控模块故障或无直流输入

慢闪(0.5Hz)

监控模块正常工作,与上位机通信正常

快闪(4Hz)

监控模块正常工作,与上位机通信不正常

告警指示灯

红色

常灭

无紧急或重要告警

常亮

有紧急或重要告

接口介绍
图3-5 接口位置




(1)电池温度传感器接口

(2)门磁传感器接口

(3)干接点输入接口

(4)干接点输出接口

(5)COM接口

(6)RS485接口

(7)LAN接口



表3-5 SMU通信口说明
通信口

通信参数

通信协议

用途

LAN接口

10M/100M自适应

-

预留

RS485接口

波特率:9600bit/s、115200bit/s、19200bit/s

电总协议、主从协议

连接上级设备,例如:动环网管

COM1/COM2接口

波特率:9600bit/s、19200bit/s

Modbus协议

连接下级设备,例如:单体电池检测仪

图3-6 RS485接口引脚

LAN接口引脚定义
引脚

信号

说明

1

TX+

FE发送数据

2

TX-

3

RX+

FE接收数据

6

RX-

4、5、7、8



-

 RS485接口引脚定义
引脚

信号

说明

1

RS485_T+

RS485发送数据

2

RS485_T-

3

NC

-

4

RS485_R+

RS485接收数据

5

RS485_R-

6

PGND

信号地

7

NC

-

8

NC

-

COM1/COM2接口引脚定义
丝印

信号

说明

+

RS485+

RS485数据正极

-

RS485-

RS485数据负极

传感器和干接点接口说明
接口类型

丝印

说明

传感器接口

GATE

门磁传感器

BTEMP

电池温度传感器

干接点输入接口

DIN1

输入干接点1

DIN2

输入干接点2

DIN3

输入干接点3

干接点输出接口

ALM1

输出干接点1

ALM2

输出干接点2

ALM3

输出干接点3

ALM4

输出干接点4

ALM5

输出干接点5

传感器引脚定义
传感器接口位置
传感器引脚定义

丝印

序号

引脚说明

GATE

1

GATE+

2

GATE-

BTEMP

1

BTEMP

2

GND

主要优点

 环境条件
项目

规格

工作温度

–20℃~+50℃

运输温度

–40℃~+70℃

贮存温度

–40℃~+70℃

工作湿度

5%~95%

贮存湿度

5%~95%

海拔要求

0m~4000m

(在2000m~4000m环境下高温降额,每升高200m,工作温度降低1℃)

电气指标
项目

规格

交流输入

输入制式与输入电压

220/380V AC三相四线:85V AC~300V AC(相电压)

输入频率

频率范围:45Hz~66Hz;标称频率:50Hz/60Hz

功率因数

≥0.99(额定输入,满载)

总谐波失真(THD)

THD≤5%(Vin=208V AC,220V AC,230V AC,50%-100%负载)

直流输出

输出电压范围

–42V DC~–58V DC

默认输出电压

–53.5V DC

输出功率

整流模块功率之和

稳压精度

≤±1%

纹波和噪声

≤200mVp-p

电话衡重杂音

≤2mV

均流不平衡度

<±5%(20%~100%负载)

交流输入保护

交流输入过压保护点

大于300V AC

交流输入过压恢复点

290V AC

交流输入欠压保护点

小于85V AC

交流输入欠压恢复点

90V AC

直流输出保护

直流输出过压保护点

范围为–58.5V DC~–60.5V DC

电话直呼
在线客服
发送邮件
联系我们:
18611994378
18611994378
18611994377
18611994378
还可输入字符250(限制字符250)
技术支持: 建站ABC | 管理登录
seo seo