|
|
»ªÎªÊÒÍâ»ú¹ñ£¬ETC»ú¹ñ£¬»§ÍâͨÐÅ»ú¹ñ£¬48V200AÊÒÍâ¹ñ²»¼äµçÔ´20KVA»ú¼Üʽ1»§ÍâͨÐŵçÔ´»ú¹ñ£¬ÊÒÍâÒ»Ì廯µç³Ø²Ö£¬ETC»ú¹ñ£¬ÍâÒ»Ì廯µç³Ø²Ö»ú¹ñ¸ßËÙETC»ú¹ñ£¬Ç°ºó¿ªÃÅ»ú¹ñ£¬ÊÒÍâͨÐÅ»ú¹ñ£¬ÌúËþ»ùÕ¾»ú¹ñ2ÊÒÍâͨÐŵçÔ´»ú¹ñ£¬ÊÒÍâµç³Ø²Ö£¬3ÊÒÍâÒ»Ì廯»ú¹ñ£¬»§ÍâͨÐÅ»ú¹ñ 4ÊÒÍâ¿Õµ÷»ú¹ñ£¬¿Õµ÷»ú¹ñ£¬»§Íâ»ú¹ñ£¬»§ÍâÉ豸»ú¹ñ£¬5G»§ÍâÒ»Ì廯»ú¹ñ£¬ÊÒÍâµçÔ´»ú¹ñ£¬ÊÒÍâÉ豸»ú¹ñ£¬ÊÒÍâ×ۺϻú¹ñ£¬»§Íâ·ÀË®»ú¹ñ£¬ÊÒÍâºãλú¹ñ£¬ÊÒÍâÍøÂçÉ豸»ú¹ñ£¬ÊÒÍâ½»»»»ú»ú¹ñ£¬Ö±Á÷¿Õµ÷»ú¹ñ£¬Â¥¶¥»ú¹ñ£¬Â䵨»ú¹ñ£¬½»Á÷¿Õµ÷»ú¹ñ£¬Ç¶ÈëʽµçÔ´ ï®µç³Ø Ö±Á÷µçÔ´ ½»Á÷µçÔ´ UPS ǶÈëʽͨÐŵçԴϵͳ »§ÍâµçԴϵͳ ×éºÏʽµçԴϵͳ ¹ÒǽʽµçԴϵͳ Ö±Á÷Ô¶¹©µçԴϵͳ Ö±Á÷ͨÐŵçԴϵͳ¸ßƵͨÐŵçÔ´Ä£¿é ÕûÁ÷Ä£¿é ÕûÁ÷Æ÷ ¼à¿Øµ¥Ôª ¼àÊÓÆ÷ÊÒÍâ¹ñ ÍøÂç»ú¹ñ ï®µç³Ø UPS ¸ßƵ¿ª¹ØµçÔ´ ͨÐŵçÔ´ ǶÈëʽµçÔ´ ÍøÂç»ú¹ñ ÊÒÄÚ»ú¹ñ ﮵çwww.zjjjdy.com.cn www.hwtxdy.net »ªÎªÊÒÍâ»ú¹ñ£¬ETC»ú¹ñ£¬»§ÍâͨÐÅ»ú¹ñ£¬48V200AÊÒÍâ¹ñ
ͼ2-3 Íâ¹Û
»ªÎªÊÒÍâ»ú¹ñ£¬ETC»ú¹ñ£¬»§ÍâͨÐÅ»ú¹ñ£¬48V200AÊÒÍâ¹ñ ±í2-2 »ú¹ñÖ¸±ê
»ªÎªÊÒÍâ»ú¹ñ£¬ETC»ú¹ñ£¬»§ÍâͨÐÅ»ú¹ñ£¬48V200AÊÒÍâ¹ñ
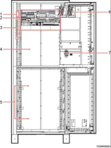
(1)ÃÅ´Å´«¸ÐÆ÷ (2)µçÔ´²å¿ò (3)»ú¹ñ½ÓµØÅÅ (4)Óû§É豸°²×°¿Õ¼ä (5)ï®µç³Ø°²×°¿Õ¼ä (7)ÍâÑ»··çÉÈ (6)ÄÚÑ»··çÉÈ »ªÎªÊÒÍâ»ú¹ñ£¬ETC»ú¹ñ£¬»§ÍâͨÐÅ»ú¹ñ£¬48V200AÊÒÍâ¹ñ ²»¼äµçÔ´20KVA»ú¼Üʽ1»§ÍâͨÐŵçÔ´»ú¹ñ£¬ÊÒÍâÒ»Ì廯µç³Ø²Ö£¬ETC»ú¹ñ£¬ÍâÒ»Ì廯µç³Ø²Ö»ú¹ñ¸ßËÙETC»ú¹ñ£¬Ç°ºó¿ªÃÅ»ú¹ñ£¬ÊÒÍâͨÐÅ»ú¹ñ£¬ÌúËþ»ùÕ¾»ú¹ñ2ÊÒÍâͨÐŵçÔ´»ú¹ñ£¬ÊÒÍâµç³Ø²Ö£¬3ÊÒÍâÒ»Ì廯»ú¹ñ£¬»§ÍâͨÐÅ»ú¹ñ 4ÊÒÍâ¿Õµ÷»ú¹ñ£¬¿Õµ÷»ú¹ñ£¬»§Íâ»ú¹ñ£¬»§ÍâÉ豸»ú¹ñ£¬5G»§ÍâÒ»Ì廯»ú¹ñ£¬ÊÒÍâµçÔ´»ú¹ñ£¬ÊÒÍâÉ豸»ú¹ñ£¬ÊÒÍâ×ۺϻú¹ñ£¬»§Íâ·ÀË®»ú¹ñ£¬ÊÒÍâºãλú¹ñ£¬ÊÒÍâÍøÂçÉ豸»ú¹ñ£¬ÊÒÍâ½»»»»ú»ú¹ñ£¬Ö±Á÷¿Õµ÷»ú¹ñ£¬Â¥¶¥»ú¹ñ£¬Â䵨»ú¹ñ£¬½»Á÷¿Õµ÷»ú¹ñ£¬Ç¶ÈëʽµçÔ´ ï®µç³Ø Ö±Á÷µçÔ´ ½»Á÷µçÔ´ UPS ǶÈëʽͨÐŵçԴϵͳ »§ÍâµçԴϵͳ ×éºÏʽµçԴϵͳ ¹ÒǽʽµçԴϵͳ Ö±Á÷Ô¶¹©µçԴϵͳ Ö±Á÷ͨÐŵçԴϵͳ¸ßƵͨÐŵçÔ´Ä£¿é ÕûÁ÷Ä£¿é ÕûÁ÷Æ÷ ¼à¿Øµ¥Ôª ¼àÊÓÆ÷ÊÒÍâ¹ñ ÍøÂç»ú¹ñ ï®µç³Ø UPS ¸ßƵ¿ª¹ØµçÔ´ ͨÐŵçÔ´ ǶÈëʽµçÔ´ ÍøÂç»ú¹ñ ÊÒÄÚ»ú¹ñ ﮵çwww.zjjjdy.com.cn www.hwtxdy.net |




