18611994378  崔经理

新闻动态

新闻动态

华为光伏设备LUNA2000-200KWH-2H0智能组串式储能系统200KW

不间电源20KVA机架式1户外通信电源机柜,室外一体化电池仓,ETC机柜,外一体化电池仓机柜高速ETC机柜,前后开门机柜,室外通信机柜,铁塔基站机柜2室外通信电源机柜,室外电池仓,3室外一体化机柜,户外通信机柜

4室外空调机柜,空调机柜,户外机柜,户外设备机柜,5G户外一体化机柜,室外电源机柜,室外设备机柜,室外综合机柜,户外防水机柜,室外恒温机柜,室外网络设备机柜,室外交换机机柜,直流空调机柜,楼顶机柜,落地机柜,交流空调机柜,嵌入式电源  锂电池 直流电源 交流电源 UPS 嵌入式通信电源系统 户外电源系统 组合式电源系统 挂墙式电源系统 直流远供电源系统 直流通信电源系统高频通信电源模块 整流模块 整流器 监控单元 监视器室外柜   网络机柜  锂电池 UPS  高频开关电源   通信电源  嵌入式电源  网络机柜  室内机柜 锂电www.zjjjdy.com.cn    www.hwtxdy.net   

功能与特点功能

  储能系统包含功率控制模块和锂电模块,可以根据智能电池簇控制器(后文简称簇控制器)要求进行电能的存储和释放。储能系统的输入、输出端口均为高压直流电。

  电池充电:智能储能控制器(后文简称Smart PCS)与簇控制器连接,在Smart PCS的控制下,给电池充电,将多余能量存储在电池中。

  电池放电:在电网不足以给负载供电时,系统需要控制电池给负载供电,将储能的电池能量经过Smart PCS输出给负载使用。

  特点

  储能系统包括供配电系统、监控系统、环境控制系统、火灾抑制系统等,具有安全可靠,快速部署,低成本、高能效和智能管理等特点。

  一包一优化

  实现电池簇内模组容量的化利用。

  电池包替换时,可直接进行电池包更换,无需技术人员操作,无需人工SOC调平,减少更换时间。

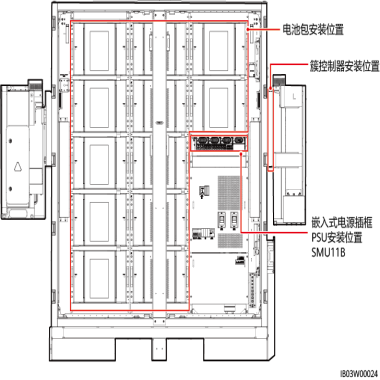
  供配电系统图2-6 供配电系统位置示意

华为光伏设备LUNA2000-200KWH-2H0智能组串式储能系统200KW

  华为光伏设备LUNA2000-200KWH-2H0智能组串式储能系统是一款具有200KW功率的储能系统。该系统采用先进的组串式设计,能够灵活适配多种场景,具备较高的可靠性,可适用于储能电站、可再生能源平滑储能、负载侧调峰、家庭/工商业用户侧储能等多种应用场景。同时,该系统还具有多种智能功能,如电压/频率调节、V2G(Vehicle-to-Grid)等,可满足不同场景的需求。此外,该系统还采用了华为自研的液冷储能电池系统,具有更高的安全性和寿命。

  华为作为全球的信息与通信技术(ICT)解决方案供应商,其储能产品在国内外市场上具有一定的竞争力。同时,随着新能源技术的不断发展,储能技术也在不断进步,华为的智能组串式储能系统在储能效率、安全性、寿命等方面也具有一定的优势。因此,该系统的上市将对国内外储能市场产生一定的影响,有可能成为储能市场的新亮点。

  电池包

  簇控制器

  嵌入式电源插框

  监控模块(SMU11B)

  整流模块(PSU)

  电池包

华为光伏设备LUNA2000-200KWH-2H0智能组串式储能系统200KW

  表2-5 电池包技术参数

  技术指标

  


  电池包(ESM51320AS1)

  


  电池包(ESM57280AS1)

  


  电芯容量

  


  3.2V/320Ah

  


  3.2V/280Ah

  


  电芯材料

  


  磷酸铁锂

  


  磷酸铁锂

  


  组合方式

  


  16S 1P

  


  18S 1P

  


  额定电压

  


  51.2V

  


  57.6V

  


  支持充放电倍率

  


  ≤1C

  


  ≤1C

  


  标称容量

  


  16.38kWh

  


  16.13kWh

  


  重量

  


  ≤140kg

  


  ≤140kg

  


  尺寸(宽×高×深)

  


  442mm×307mm×660mm

  


  442mm×307mm×660mm

  


  散热方式

  


  风冷

  


  风冷

  


  防护等级

  


  IP20+

  


  IP20+

  


  仓储环境温度

  


  0℃~40℃

  


  0℃~40℃

  


  运输环境温度

  


  -40℃~60℃

  


  -40℃~60℃

  


  均衡方式

  


  电芯间被动均衡

  


  电芯间被动均衡

  


  通讯接口

  


  CAN 2.0

  


  CAN 2.0

  


  华为光伏设备LUNA2000-200KWH-2H0智能组串式储能系统是一款200KW的储能系统,它采用了先进的储能技术和设备,能够有效地解决光伏发电的波动性和随机性问题,提高光伏发电的稳定性和可靠性,同时还可以用于调峰调频、电力辅助服务等领域。该系统具有高效、安全、智能、环保等特点,适用于各种光伏电站和电力系统的应用场景。

不间电源20KVA机架式1户外通信电源机柜,室外一体化电池仓,ETC机柜,外一体化电池仓机柜高速ETC机柜,前后开门机柜,室外通信机柜,铁塔基站机柜2室外通信电源机柜,室外电池仓,3室外一体化机柜,户外通信机柜

4室外空调机柜,空调机柜,户外机柜,户外设备机柜,5G户外一体化机柜,室外电源机柜,室外设备机柜,室外综合机柜,户外防水机柜,室外恒温机柜,室外网络设备机柜,室外交换机机柜,直流空调机柜,楼顶机柜,落地机柜,交流空调机柜,嵌入式电源  锂电池 直流电源 交流电源 UPS 嵌入式通信电源系统 户外电源系统 组合式电源系统 挂墙式电源系统 直流远供电源系统 直流通信电源系统高频通信电源模块 整流模块 整流器 监控单元 监视器室外柜   网络机柜  锂电池 UPS  高频开关电源   通信电源  嵌入式电源  网络机柜  室内机柜 锂电www.zjjjdy.com.cn    www.hwtxdy.net   


电话直呼
在线客服
发送邮件
联系我们:
18611994378
18611994378
18611994377
18611994378
还可输入字符250(限制字符250)
技术支持: 建站ABC | 管理登录
seo seo