18611994378  崔经理

新闻动态

新闻动态

华为空调机柜,户外柜,TP48300A一体化机柜,48V300A户外一体化机柜

华为空调机柜,户外柜,TP48300A一体化机柜,48V300A户外一体化机柜不间电源20KVA机架式1户外通信电源机柜,室外一体化电池仓,ETC机柜,外一体化电池仓机柜高速ETC机柜,前后开门机柜,室外通信机柜,铁塔基站机柜2室外通信电源机柜,室外电池仓,3室外一体化机柜,户外通信机柜

4室外空调机柜,空调机柜,户外机柜,户外设备机柜,5G户外一体化机柜,室外电源机柜,室外设备机柜,室外综合机柜,户外防水机柜,室外恒温机柜,室外网络设备机柜,室外交换机机柜,直流空调机柜,楼顶机柜,落地机柜,交流空调机柜,嵌入式电源  锂电池 直流电源 交流电源 UPS 嵌入式通信电源系统 户外电源系统 组合式电源系统 挂墙式电源系统 直流远供电源系统 直流通信电源系统高频通信电源模块 整流模块 整流器 监控单元 监视器室外柜   网络机柜  锂电池 UPS  高频开关电源   通信电源  嵌入式电源  网络机柜  室内机柜 锂电www.zjjjdy.com.cn    www.hwtxdy.net   

华为空调机柜,户外柜,TP48300A一体化机柜,48V300A户外一体化机柜

MTS9302A-HA16A1

 

2-5 外观

 

 

 

2-3 机柜指标

 

柜外尺寸(高×宽×深)

1600mm×650mm×650mm  (包含底座, 不含机柜外凸部分)

机柜重量

135kg  (不含整流模块和电池)

用户空

9U

温控方式

备舱:热交换

电池舱:PC300D

护等级

IP55


华为空调机柜,户外柜,TP48300A一体化机柜,48V300A户外一体化机柜

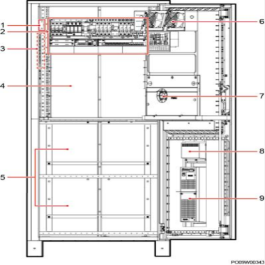
内部结构

 

 

 


(1)门磁传感器

(4)用户设备安装空间

(7)外循环风扇


(2)电源插框

(5)电池安装空间

(8)排氢


(3)机柜接地

(6)内循环风

(9PC300D


华为空调机柜,户外柜,TP48300A一体化机柜,48V300A户外一体化机柜


华为空调机柜,户外柜,TP48300A一体化机柜,48V300A户外一体化机柜

华为空调机柜,户外柜,TP48300A一体化机柜,48V300A户外一体化机柜不间电源20KVA机架式1户外通信电源机柜,室外一体化电池仓,ETC机柜,外一体化电池仓机柜高速ETC机柜,前后开门机柜,室外通信机柜,铁塔基站机柜2室外通信电源机柜,室外电池仓,3室外一体化机柜,户外通信机柜

4室外空调机柜,空调机柜,户外机柜,户外设备机柜,5G户外一体化机柜,室外电源机柜,室外设备机柜,室外综合机柜,户外防水机柜,室外恒温机柜,室外网络设备机柜,室外交换机机柜,直流空调机柜,楼顶机柜,落地机柜,交流空调机柜,嵌入式电源  锂电池 直流电源 交流电源 UPS 嵌入式通信电源系统 户外电源系统 组合式电源系统 挂墙式电源系统 直流远供电源系统 直流通信电源系统高频通信电源模块 整流模块 整流器 监控单元 监视器室外柜   网络机柜  锂电池 UPS  高频开关电源   通信电源  嵌入式电源  网络机柜  室内机柜 锂电www.zjjjdy.com.cn    www.hwtxdy.net   


电话直呼
在线客服
发送邮件
联系我们:
18611994378
18611994378
18611994377
18611994378
还可输入字符250(限制字符250)
技术支持: 建站ABC | 管理登录
seo seo