|
|
华为TP48300T-N20A1内部结构技术参数,华为TP48300通信电源,华为TP48高频开关电源不间电源20KVA机架式1户外通信电源机柜,室外一体化电池仓,ETC机柜,外一体化电池仓机柜高速ETC机柜,前后开门机柜,室外通信机柜,铁塔基站机柜2室外通信电源机柜,室外电池仓,3室外一体化机柜,户外通信机柜 4室外空调机柜,空调机柜,户外机柜,户外设备机柜,5G户外一体化机柜,室外电源机柜,室外设备机柜,室外综合机柜,户外防水机柜,室外恒温机柜,室外网络设备机柜,室外交换机机柜,直流空调机柜,楼顶机柜,落地机柜,交流空调机柜,嵌入式电源 锂电池 直流电源 交流电源 UPS 嵌入式通信电源系统 户外电源系统 组合式电源系统 挂墙式电源系统 直流远供电源系统 直流通信电源系统高频通信电源模块 整流模块 整流器 监控单元 监视器室外柜 网络机柜 锂电池 UPS 高频开关电源 通信电源 嵌入式电源 网络机柜 室内机柜 锂电www.zjjjdy.com.cn www.hwtxdy.net 华为TP48300T-N20A1内部结构技术参数,华为TP48300通信电源,华为TP48高频开关电源
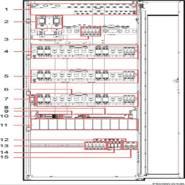
(1)RTN+母排 (2)电池熔丝 (3)用户 4 的负载空开 华为TP48300T-N20A1内部结构技术参数,华为TP48300通信电源,华为TP48高频开关电源 (4)用户 3 的负载熔丝和空开(5) 用户 2 的负载熔丝和空开 (6) 用户 1 的负载熔丝和空开(7) 公用直流防雷器 (8)用户接口模块 (9)监控单元 (10)通信扩展模块安装空间 (11) 整流模块安装空间 (12)N 接线排 (13)整流模块空开 (14)交流防雷器 (15)交流输入空开 华为TP48300T-N20A1内部结构技术参数,华为TP48300通信电源,华为TP48高频开关电源 华为TP48300T-N20A1内部结构技术参数,华为TP48300通信电源,华为TP48高频开关电源不间电源20KVA机架式1户外通信电源机柜,室外一体化电池仓,ETC机柜,外一体化电池仓机柜高速ETC机柜,前后开门机柜,室外通信机柜,铁塔基站机柜2室外通信电源机柜,室外电池仓,3室外一体化机柜,户外通信机柜 4室外空调机柜,空调机柜,户外机柜,户外设备机柜,5G户外一体化机柜,室外电源机柜,室外设备机柜,室外综合机柜,户外防水机柜,室外恒温机柜,室外网络设备机柜,室外交换机机柜,直流空调机柜,楼顶机柜,落地机柜,交流空调机柜,嵌入式电源 锂电池 直流电源 交流电源 UPS 嵌入式通信电源系统 户外电源系统 组合式电源系统 挂墙式电源系统 直流远供电源系统 直流通信电源系统高频通信电源模块 整流模块 整流器 监控单元 监视器室外柜 网络机柜 锂电池 UPS 高频开关电源 通信电源 嵌入式电源 网络机柜 室内机柜 锂电www.zjjjdy.com.cn www.hwtxdy.net |



