|
|
华为UPS5000-H-400K-FT技术参数,华为400KVA不间断电源不间电源20KVA机架式1户外通信电源机柜,室外一体化电池仓,ETC机柜,外一体化电池仓机柜高速ETC机柜,前后开门机柜,室外通信机柜,铁塔基站机柜2室外通信电源机柜,室外电池仓,3室外一体化机柜,户外通信机柜 4室外空调机柜,空调机柜,户外机柜,户外设备机柜,5G户外一体化机柜,室外电源机柜,室外设备机柜,室外综合机柜,户外防水机柜,室外恒温机柜,室外网络设备机柜,室外交换机机柜,直流空调机柜,楼顶机柜,落地机柜,交流空调机柜,嵌入式电源 锂电池 直流电源 交流电源 UPS 嵌入式通信电源系统 户外电源系统 组合式电源系统 挂墙式电源系统 直流远供电源系统 直流通信电源系统高频通信电源模块 整流模块 整流器 监控单元 监视器室外柜 网络机柜 锂电池 UPS 高频开关电源 通信电源 嵌入式电源 网络机柜 室内机柜 锂电www.zjjjdy.com.cn www.hwtxdy.net 华为UPS5000-H-400K-FT技术参数,华为400KVA不间断电源 UPS5000-H-400K-FT采用100kVA功率模块,最大可扩容至400kVA,向下兼容至200kVA。
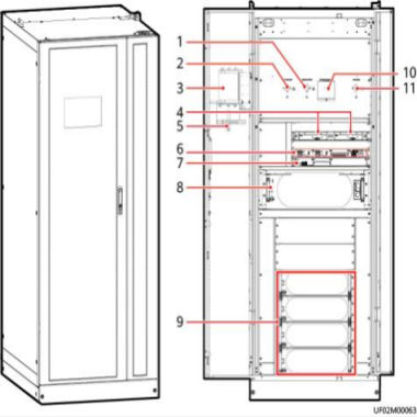
华为UPS5000-H-400K-FT技术参数,华为400KVA不间断电源机柜介绍 满配配置 图 3-2 400kVA 外观和内部结构
( 1 )旁路输入开关 (2)主路输入开关 (3)监控显示模块 (4)防雷盒(选配) (5)开关手柄 (6)控制模块 ( 7 )智能检测卡 (8)旁路模块 (9)功率模块 ( 10)维修旁路开关 ( 11 )输出开关 5000-H是华为推出的高端模块化UPS,采用在线式双变换和部件模块化冗余设计。基于DSP全数字化控制,为客户提供超高效率、超高功率密度的UPS
5000-H继承了UPS5000-S高效UPS的优点,同时也进一步提升了性能。 继承5000S平台特性优点: 高效,Up to 97%@277V,Up to 96.8%@240V。 功率模块化设计,且支持热插拔,安装、扩容、维护极其简易。 控制模块冗余设计,系统高度可靠。 iPower故障预警功能,电池、电容以及风扇等关键部件失效预警,防止故障扩大。 进行用户端接线铜排测温,识别铜排过温风险 易于监控管理,内置SNMP卡,节省管理投资,配置简单灵活,华为NetEco 6000网管软件,轻松实现集中远程管理。 华为UPS5000-H-400K-FT技术参数,华为400KVA不间断电源 5000H新优势: 高功率密度,功率模块的功率密度高,可达100kW/3U,业界最高。 空间利用率高,节约占地为更多IT设备提供空间,如1200K的占地面积比5000S-1200K减少43% 安装简单,不需现场并柜等动作 支持40~55℃环温下降额运行 功率模块增加把手设计,便于维护 华为UPS5000-H-400K-FT技术参数,华为400KVA不间断电源不间电源20KVA机架式1户外通信电源机柜,室外一体化电池仓,ETC机柜,外一体化电池仓机柜高速ETC机柜,前后开门机柜,室外通信机柜,铁塔基站机柜2室外通信电源机柜,室外电池仓,3室外一体化机柜,户外通信机柜 4室外空调机柜,空调机柜,户外机柜,户外设备机柜,5G户外一体化机柜,室外电源机柜,室外设备机柜,室外综合机柜,户外防水机柜,室外恒温机柜,室外网络设备机柜,室外交换机机柜,直流空调机柜,楼顶机柜,落地机柜,交流空调机柜,嵌入式电源 锂电池 直流电源 交流电源 UPS 嵌入式通信电源系统 户外电源系统 组合式电源系统 挂墙式电源系统 直流远供电源系统 直流通信电源系统高频通信电源模块 整流模块 整流器 监控单元 监视器室外柜 网络机柜 锂电池 UPS 高频开关电源 通信电源 嵌入式电源 网络机柜 室内机柜 锂电www.zjjjdy.com.cn www.hwtxdy.net |




