|
|
»ªÎªTP48300T-N20A1ÄÚ²¿½á¹¹¼¼Êõ²ÎÊý£¬»ªÎªTP48300ͨÐŵçÔ´£¬»ªÎªTP48¸ßƵ¿ª¹ØµçÔ´²»¼äµçÔ´20KVA»ú¼Üʽ1»§ÍâͨÐŵçÔ´»ú¹ñ£¬ÊÒÍâÒ»Ì廯µç³Ø²Ö£¬ETC»ú¹ñ£¬ÍâÒ»Ì廯µç³Ø²Ö»ú¹ñ¸ßËÙETC»ú¹ñ£¬Ç°ºó¿ªÃÅ»ú¹ñ£¬ÊÒÍâͨÐÅ»ú¹ñ£¬ÌúËþ»ùÕ¾»ú¹ñ2ÊÒÍâͨÐŵçÔ´»ú¹ñ£¬ÊÒÍâµç³Ø²Ö£¬3ÊÒÍâÒ»Ì廯»ú¹ñ£¬»§ÍâͨÐÅ»ú¹ñ 4ÊÒÍâ¿Õµ÷»ú¹ñ£¬¿Õµ÷»ú¹ñ£¬»§Íâ»ú¹ñ£¬»§ÍâÉ豸»ú¹ñ£¬5G»§ÍâÒ»Ì廯»ú¹ñ£¬ÊÒÍâµçÔ´»ú¹ñ£¬ÊÒÍâÉ豸»ú¹ñ£¬ÊÒÍâ×ۺϻú¹ñ£¬»§Íâ·ÀË®»ú¹ñ£¬ÊÒÍâºãλú¹ñ£¬ÊÒÍâÍøÂçÉ豸»ú¹ñ£¬ÊÒÍâ½»»»»ú»ú¹ñ£¬Ö±Á÷¿Õµ÷»ú¹ñ£¬Â¥¶¥»ú¹ñ£¬Â䵨»ú¹ñ£¬½»Á÷¿Õµ÷»ú¹ñ£¬Ç¶ÈëʽµçÔ´ ï®µç³Ø Ö±Á÷µçÔ´ ½»Á÷µçÔ´ UPS ǶÈëʽͨÐŵçԴϵͳ »§ÍâµçԴϵͳ ×éºÏʽµçԴϵͳ ¹ÒǽʽµçԴϵͳ Ö±Á÷Ô¶¹©µçԴϵͳ Ö±Á÷ͨÐŵçԴϵͳ¸ßƵͨÐŵçÔ´Ä£¿é ÕûÁ÷Ä£¿é ÕûÁ÷Æ÷ ¼à¿Øµ¥Ôª ¼àÊÓÆ÷ÊÒÍâ¹ñ ÍøÂç»ú¹ñ ï®µç³Ø UPS ¸ßƵ¿ª¹ØµçÔ´ ͨÐŵçÔ´ ǶÈëʽµçÔ´ ÍøÂç»ú¹ñ ÊÒÄÚ»ú¹ñ ﮵çwww.zjjjdy.com.cn www.hwtxdy.net »ªÎªTP48300T-N20A1ÄÚ²¿½á¹¹¼¼Êõ²ÎÊý£¬»ªÎªTP48300ͨÐŵçÔ´£¬»ªÎªTP48¸ßƵ¿ª¹ØµçÔ´
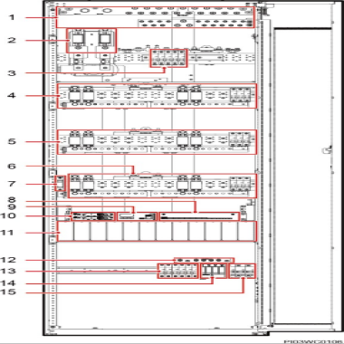
£¨1£©RTN+ĸÅÅ £¨2£©µç³ØÈÛË¿ £¨3£©Óû§ 4 µÄ¸ºÔؿտª »ªÎªTP48300T-N20A1ÄÚ²¿½á¹¹¼¼Êõ²ÎÊý£¬»ªÎªTP48300ͨÐŵçÔ´£¬»ªÎªTP48¸ßƵ¿ª¹ØµçÔ´ £¨4£©Óû§ 3 µÄ¸ºÔØÈÛË¿ºÍ¿Õ¿ª£¨5£© Óû§ 2 µÄ¸ºÔØÈÛË¿ºÍ¿Õ¿ª £¨6£© Óû§ 1 µÄ¸ºÔØÈÛË¿ºÍ¿Õ¿ª£¨7£© ¹«ÓÃÖ±Á÷·ÀÀׯ÷ £¨8£©Óû§½Ó¿ÚÄ£¿é £¨9£©¼à¿Øµ¥Ôª £¨10£©Í¨ÐÅÀ©Õ¹Ä£¿é°²×°¿Õ¼ä £¨11£© ÕûÁ÷Ä£¿é°²×°¿Õ¼ä £¨12£©N ½ÓÏßÅÅ £¨13£©ÕûÁ÷Ä£¿é¿Õ¿ª £¨14£©½»Á÷·ÀÀׯ÷ £¨15£©½»Á÷ÊäÈë¿Õ¿ª »ªÎªTP48300T-N20A1ÄÚ²¿½á¹¹¼¼Êõ²ÎÊý£¬»ªÎªTP48300ͨÐŵçÔ´£¬»ªÎªTP48¸ßƵ¿ª¹ØµçÔ´ »ªÎªTP48300T-N20A1ÄÚ²¿½á¹¹¼¼Êõ²ÎÊý£¬»ªÎªTP48300ͨÐŵçÔ´£¬»ªÎªTP48¸ßƵ¿ª¹ØµçÔ´²»¼äµçÔ´20KVA»ú¼Üʽ1»§ÍâͨÐŵçÔ´»ú¹ñ£¬ÊÒÍâÒ»Ì廯µç³Ø²Ö£¬ETC»ú¹ñ£¬ÍâÒ»Ì廯µç³Ø²Ö»ú¹ñ¸ßËÙETC»ú¹ñ£¬Ç°ºó¿ªÃÅ»ú¹ñ£¬ÊÒÍâͨÐÅ»ú¹ñ£¬ÌúËþ»ùÕ¾»ú¹ñ2ÊÒÍâͨÐŵçÔ´»ú¹ñ£¬ÊÒÍâµç³Ø²Ö£¬3ÊÒÍâÒ»Ì廯»ú¹ñ£¬»§ÍâͨÐÅ»ú¹ñ 4ÊÒÍâ¿Õµ÷»ú¹ñ£¬¿Õµ÷»ú¹ñ£¬»§Íâ»ú¹ñ£¬»§ÍâÉ豸»ú¹ñ£¬5G»§ÍâÒ»Ì廯»ú¹ñ£¬ÊÒÍâµçÔ´»ú¹ñ£¬ÊÒÍâÉ豸»ú¹ñ£¬ÊÒÍâ×ۺϻú¹ñ£¬»§Íâ·ÀË®»ú¹ñ£¬ÊÒÍâºãλú¹ñ£¬ÊÒÍâÍøÂçÉ豸»ú¹ñ£¬ÊÒÍâ½»»»»ú»ú¹ñ£¬Ö±Á÷¿Õµ÷»ú¹ñ£¬Â¥¶¥»ú¹ñ£¬Â䵨»ú¹ñ£¬½»Á÷¿Õµ÷»ú¹ñ£¬Ç¶ÈëʽµçÔ´ ï®µç³Ø Ö±Á÷µçÔ´ ½»Á÷µçÔ´ UPS ǶÈëʽͨÐŵçԴϵͳ »§ÍâµçԴϵͳ ×éºÏʽµçԴϵͳ ¹ÒǽʽµçԴϵͳ Ö±Á÷Ô¶¹©µçԴϵͳ Ö±Á÷ͨÐŵçԴϵͳ¸ßƵͨÐŵçÔ´Ä£¿é ÕûÁ÷Ä£¿é ÕûÁ÷Æ÷ ¼à¿Øµ¥Ôª ¼àÊÓÆ÷ÊÒÍâ¹ñ ÍøÂç»ú¹ñ ï®µç³Ø UPS ¸ßƵ¿ª¹ØµçÔ´ ͨÐŵçÔ´ ǶÈëʽµçÔ´ ÍøÂç»ú¹ñ ÊÒÄÚ»ú¹ñ ﮵çwww.zjjjdy.com.cn www.hwtxdy.net |



