|
|
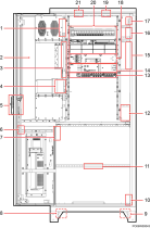
华为MTS9000A 多功能通信系统 V100R001不间电源20KVA机架式1户外通信电源机柜,室外一体化电池仓,ETC机柜,外一体化电池仓机柜高速ETC机柜,前后开门机柜,室外通信机柜,铁塔基站机柜2室外通信电源机柜,室外电池仓,3室外一体化机柜,户外通信机柜 4室外空调机柜,空调机柜,户外机柜,户外设备机柜,5G户外一体化机柜,室外电源机柜,室外设备机柜,室外综合机柜,户外防水机柜,室外恒温机柜,室外网络设备机柜,室外交换机机柜,直流空调机柜,楼顶机柜,落地机柜,交流空调机柜,嵌入式电源 锂电池 直流电源 交流电源 UPS 嵌入式通信电源系统 户外电源系统 组合式电源系统 挂墙式电源系统 直流远供电源系统 直流通信电源系统高频通信电源模块 整流模块 整流器 监控单元 监视器室外柜 网络机柜 锂电池 UPS 高频开关电源 通信电源 嵌入式电源 网络机柜 室内机柜 锂电www.zjjjdy.com.cn www.hwtxdy.net 华为MTS9000A 多功能通信系统 V100R001 通信,华为,室外一体化机柜,户外通信机柜 电源系统的部件布局
根据用户的实际需求,可以灵活配置合适的部件以满足用户需求,各部件在机柜内的 推荐布局如下所示。 电池舱/柜的空闲空间不能放置其他电器设备,避免产生电池过热或短路等质量风险。 电源柜/设备柜放入的设备不允许超过温控设备的最大换热能力,避免因负载扩容导致高温问 题从而影响业务。 图2-6 部件布局MTS9000A 多功能通信系统 安装指南 2 安装前准备 文档版本 03 (2019-03-14) 华为专有和保密信息 版权所有 © 华为技术有限公司 14 表2-3 部件布局说明 序号 部件名称 序号 部件名称 1 交流检测模块 12 MBUS 模块 CCO 2 温控门 13 直流配电单元 DCDB (或 EFUSE;下方可安 装交流电表) 3 交流输出盒或交流 扩展框(不支持同 时配置) 14 直流切换单元 DTS200-A2 4 温湿度传感器 15 直流输出盒或直流 扩展框(不支持同 时配置) 5 电子门锁 16 太阳能输入盒 6 振动传感器 17 门磁传感器 7 CIM(CIM01C3) 18 高压配电单元 ETPH3820-D1 8 GPRS 天线 19 直流照明灯 9 声光告警器 20 电源插框 10 水浸传感器 21 烟雾传感器 11 电池温度 华为MTS9000A 多功能通信系统 V100R001不间电源20KVA机架式1户外通信电源机柜,室外一体化电池仓,ETC机柜,外一体化电池仓机柜高速ETC机柜,前后开门机柜,室外通信机柜,铁塔基站机柜2室外通信电源机柜,室外电池仓,3室外一体化机柜,户外通信机柜 4室外空调机柜,空调机柜,户外机柜,户外设备机柜,5G户外一体化机柜,室外电源机柜,室外设备机柜,室外综合机柜,户外防水机柜,室外恒温机柜,室外网络设备机柜,室外交换机机柜,直流空调机柜,楼顶机柜,落地机柜,交流空调机柜,嵌入式电源 锂电池 直流电源 交流电源 UPS 嵌入式通信电源系统 户外电源系统 组合式电源系统 挂墙式电源系统 直流远供电源系统 直流通信电源系统高频通信电源模块 整流模块 整流器 监控单元 监视器室外柜 网络机柜 锂电池 UPS 高频开关电源 通信电源 嵌入式电源 网络机柜 室内机柜 锂电www.zjjjdy.com.cn www.hwtxdy.net |



