|
|
华为MTS9000A 多功能通信系统 V100R001通信电源.PDU配电单元.锂电池.充电桩模块.蓄电池.电池开关箱.一体化UPS电源.UPS电源.不间断电源.逆变器.精密空调.通信电源.开关电源.嵌入式电源.室外机柜.户外机柜.壁挂电源.网络机柜.服务器机柜.交换机机柜.列头柜.配电箱.一体化机柜.48V通信电源.24V通信电源.分立式通信电源.组合式通信电源.监控模块.整流模块.ATS自动切换,通信电源.开关电源.高频开关电源 .5G室外通信电源柜.室外柜.户外机柜.室外一体化电源.通信电源柜..壁挂通信电源.分立式通信电源柜.一体化电源柜.网络机柜.服务器机柜.交换机机柜.冷风通道机柜.列头柜..交流配电柜.不间断UPS电源.锂电池.蓄电池.精密空调.嵌入式电源.PDU配电单元.配电箱.充电桩模块.整流模块.监控模块.外机柜.室内机柜.壁挂电源.高频开关电源.冷风通道机柜.不间断UPS电源.整流模块.UPS模块.高频开关电源柜. 充电桩模块.5G室外一体化机柜.室内一体化机柜.监控单元.UPS旁路电源.OLT传输机柜.嵌入式电源.室外电池仓.不间断电源20KV UPS.ETC机柜.锂电池.网络机柜.整流器.楼顶机柜.室外综合机柜.三合一高频开关电源机柜.直流远供电电源系统.落地机柜.交流电源系统.室内电池柜.高压开关电源ETP48200 ETP48400 ETP48600华为MTS9000A 多功能通信 华为MTS9000A 多功能通信系统 V100R001 通信,华为,室外一体化机柜,户外通信机柜 电源系统的部件布局
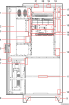
根据用户的实际需求,可以灵活配置合适的部件以满足用户需求,各部件在机柜内的 推荐布局如下所示。 电池舱/柜的空闲空间不能放置其他电器设备,避免产生电池过热或短路等质量风险。 电源柜/设备柜放入的设备不允许超过温控设备的最大换热能力,避免因负载扩容导致高温问 题从而影响业务。 图2-6 部件布局MTS9000A 多功能通信系统 安装指南 2 安装前准备 文档版本 03 (2019-03-14) 华为专有和保密信息 版权所有 © 华为技术有限公司 14 表2-3 部件布局说明 序号 部件名称 序号 部件名称 1 交流检测模块 12 MBUS 模块 CCO 2 温控门 13 直流配电单元 DCDB (或 EFUSE;下方可安 装交流电表) 3 交流输出盒或交流 扩展框(不支持同 时配置) 14 直流切换单元 DTS200-A2 4 温湿度传感器 15 直流输出盒或直流 扩展框(不支持同 时配置) 5 电子门锁 16 太阳能输入盒 6 振动传感器 17 门磁传感器 7 CIM(CIM01C3) 18 高压配电单元 ETPH3820-D1 8 GPRS 天线 19 直流照明灯 9 声光告警器 20 电源插框 10 水浸传感器 21 烟雾传感器 11 电池温度传感器 无 无 系统 V100R001通信电源.PDU配电单元.锂电池.充电桩模块.蓄电池.电池开关箱.一体化UPS电源.UPS电源.不间断电源.逆变器.精密空调.通信电源.开关电源.嵌入式电源.室外机柜.户外机柜.壁挂电源.网络机柜.服务器机柜.交换机机柜.列头柜.配电箱.一体化机柜.48V通信电源.24V通信电源.分立式通信电源.组合式通信电源.监控模块.整流模块.ATS自动切换,通信电源.开关电源.高频开关电源 .5G室外通信电源柜.室外柜.户外机柜.室外一体化电源.通信电源柜..壁挂通信电源.分立式通信电源柜.一体化电源柜.网络机柜.服务器机柜.交换机机柜.冷风通道机柜.列头柜..交流配电柜.不间断UPS电源.锂电池.蓄电池.精密空调.嵌入式电源.PDU配电单元.配电箱.充电桩模块.整流模块.监控模块.外机柜.室内机柜.壁挂电源.高频开关电源.冷风通道机柜.不间断UPS电源.整流模块.UPS模块.高频开关电源柜. 充电桩模块.5G室外一体化机柜.室内一体化机柜.监控单元.UPS旁路电源.OLT传输机柜.嵌入式电源.室外电池仓.不间断电源20KV UPS.ETC机柜.锂电池.网络机柜.整流器.楼顶机柜.室外综合机柜.三合一高频开关电源机柜.直流远供电电源系统.落地机柜.交流电源系统.室内电池柜.高压开关电源ETP48200 ETP48400 ETP48600 |



